| ECODENSE WT - EC ЭЛЕКТРИЧЕСКИЕ КОМБАЙНЫ | Единица | WT-EC 8 | WT-EC 10 | WT-EC 16 | WT-EC 20 | WT-EC 24 | ||||||||
|---|---|---|---|---|---|---|---|---|---|---|---|---|---|---|
| Теплоемкость | ||||||||||||||
| Максимальная теплоемкость | квт | 8 | 10 | 16 | 20 | 24 | ||||||||
| Минимальная теплоемкость | квт | 2 | 2 | 2 | 3 | 3 | ||||||||
| Электрические характеристики | ||||||||||||||
| Номинальный ток | A | 1-52,3 | 21,8 | 26,2 | 34,9 | 39,2 | ||||||||
| Напряжение питания | V | 1 - 230 VAC | 1 - 230 VAC | 3-400 VAC | 3-400 VAC | 3-400 VAC | ||||||||
| Поперечное сечение подающего кабеля (мм) | - | 3x10 | 5x6 | 5x6 | 5x6 | 5x10 | ||||||||
| Свойства газа | ||||||||||||||
| Уровень звука | dB | 37 | 37 | 37 | 37 | 37 | ||||||||
| Класс защиты | - | IPX4D | IPX4D | IPX4D | IPX4D | IPX4D | ||||||||
| Вес нетто (кг) | кг | 30 | 30 | 30 | 30 | 30 | ||||||||
| Размеры (В х Ш х Г) | MM | 656x465x320 | 656x465x320 | 656x465x320 | 656x465x320 | 656x465x320 | ||||||||
| Нагревательный контур | ||||||||||||||
| Максимальное рабочее давление | Bar | 8 | 8 | 8 | 8 | 8 | ||||||||
| Минимальное рабочее давление | Bar | 3 | 3 | 3 | 3 | 3 | ||||||||
| Декабрь регулировки горячей воды | °C | 30-65 | 30-65 | 30-65 | 30-65 | 30-65 | ||||||||
| Производственная мощность горячей воды | lt/dk | 4 | 5 | 8 | 10 | 12 | ||||||||
| Декабрь регулировки температуры контура нагрева | °C | 30-80 | 30-80 | 30-80 | 30-80 | 30-80 | ||||||||
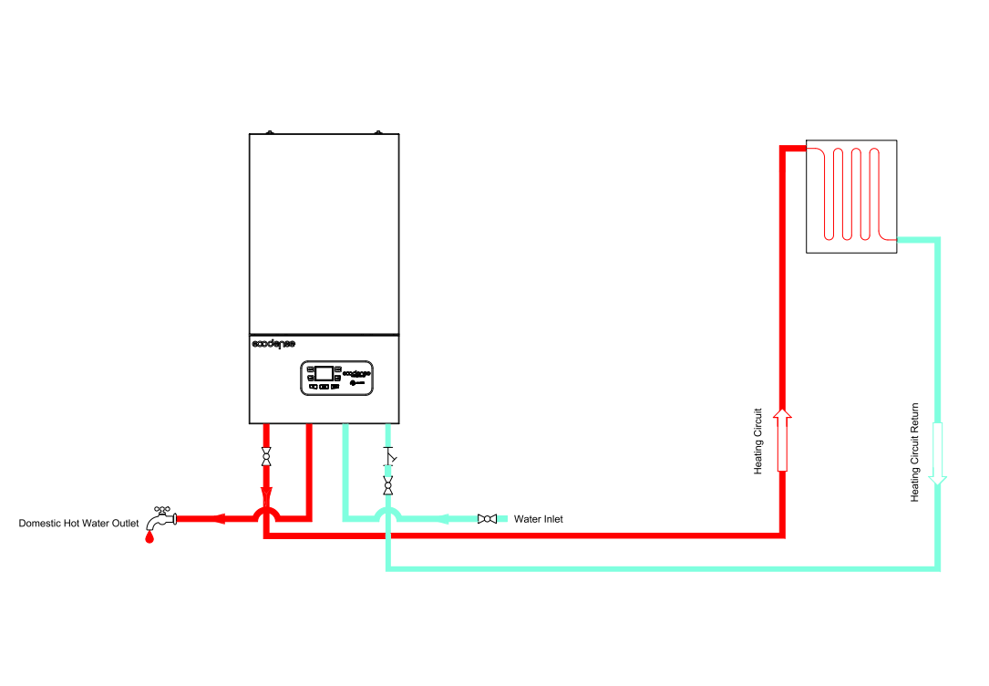
| Особенности подключения к водопроводу | ||||||||||||||
| Диаметр входной и выходной труб отопительного контура | дюйм | 3/4" | 3/4" | 3/4" | 3/4" | 3/4" | ||||||||
| Диаметр входной и выходной труб отопительного контура | дюйм | 1/2" | 1/2" | 1/2" | 1/2" | 1/2" | ||||||||

| MODEL | W (mm) |
H (mm) |
D (mm) |
C1 (mm) |
C2 (mm) |
C3 (mm) |
C4 (mm) |
C5 (mm) |
A (mm) |
B (mm) |
C (mm) |
D (mm) |
|---|---|---|---|---|---|---|---|---|---|---|---|---|
| WT-EC 8 | 465 | 655 | 320 | 95 | 160 | 308 | 373 | 90 | G 3/4" | G 1/2" | G 1/2" | G 3/4" |
| WT-EC 10 | 465 | 655 | 320 | 95 | 160 | 308 | 373 | 90 | G 3/4" | G 1/2" | G 1/2" | G 3/4" |
| WT-EC 16 | 465 | 655 | 320 | 95 | 160 | 308 | 373 | 90 | G 3/4" | G 1/2" | G 1/2" | G 3/4" |
| WT-EC 20 | 465 | 655 | 320 | 95 | 160 | 308 | 373 | 90 | G 3/4" | G 1/2" | G 1/2" | G 3/4" |
| WT-EC 24 | 465 | 655 | 320 | 95 | 160 | 308 | 373 | 90 | G 3/4" | G 1/2" | G 1/2" | G 3/4" |